Насос дренажный предназначен для откачки дренажных, дождевых и грунтовых вод с затопленных подвальных помещений, для отвода фильтрационных, слегка загрязненных жидкостей из сточных канав и бассейнов. Кроме того, насосы могут применяться для орошения огородов и садов, а также для подачи воды из колодцев, открытых водоемов и других источников при температуре окружающей среды не ниже + 1 градус.
Предупреждение
- Насос никогда не должен работать без воды.
- Категорически запрещается перекачка легковоспламеняющихся и химически активных жидкостей, а также жидкостей содержащих абразивные вещества, крупные камни, металлические и другие твердые предметы.
- Недопустима перекачка длинно волоконных включений (волосы, предметы гигиены и др.)
- Температура воды должна быть от 1 градуса до 40.
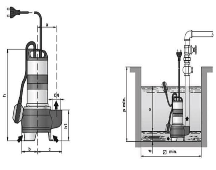
- Насос следует переносить только за рукоятку, погружать и поднимать - за веревку, привязанную к рукоятке.
- Проверить, чтобы в нижнем положении поплавкового выключателя насос отключался.
- Проверить отсутствие препятствий для перемещения поплавка.
Строение насоса
Насос дренажный состоит из насосной части и электродвигателя. Насосная часть состоит из рабочего колеса, закрепленного на валу ротора электродвигателя, уплотнений и корпуса насоса. Внизу насосной части расположены всасывающие отверстия для механической очистки воды. Электродвигатель однофазный асинхронный переменного тока (220 ± вольт, 50 ± 2,5 герц), с частотой вращения 2900 об / мин, который находится в середине герметичной закрытого корпуса. Степень защиты от поражения электрическим током - IP 68. Стартер имеет две обмотки - пусковую и рабочую. В обмотках стартера есть термостат, который отключает электродвигатель при повышении температуры обмоток.

